Bonus 50%
La piattaforma elevatrice Otello è personalizzabile con diversi tipi di rivestimento, ad esempio con legno, piastrelle e moquette, in modo da adattarsi ad ogni tipo di pavimentazione. Il rivestimento può raggiungere i 22 mm di spessore in modo da essere elegante ed estremamente resistente.
Quando la piattaforma è attivata, entrano in funzione i bordi di sicurezza presenti che si sollevano automaticamente e impediscono che l’utente scivoli fuori. Questi si attivano e si ritraggono sia in fase di salita che in fase di discesa. Garantendo massima sicurezza.
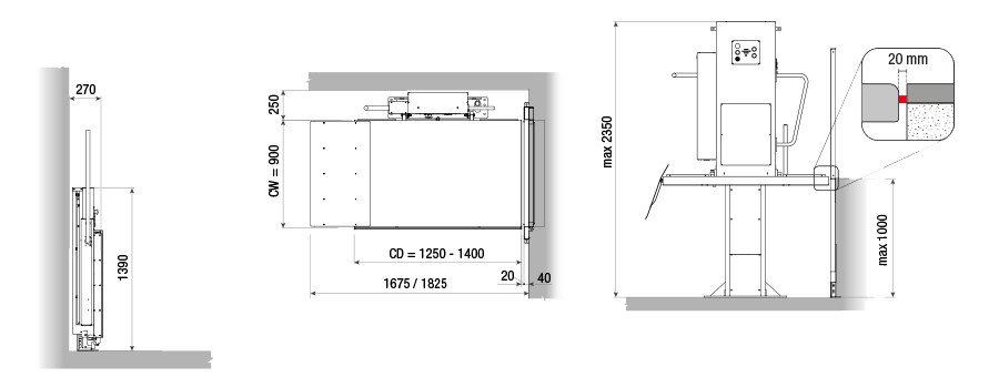
La piattaforma dispone di un’ampia pedana che può arrivare a 1450×1090 mm e soprattutto un altezza di incasso estremamente ridotta, solo 155 mm. Questo permette la massima comodità a persone in sedia a rotelle che devono utilizzarla. Inoltre è equipaggiata con bordi di sicurezza.
Otello è progettato per l’incasso a pavimento e grazie al suo esclusivo design diventa un elemento integrato nell’edificio. Scompare nel pavimento, divenendo semplice e sobrio e non impattando sull’architettura circostante. Questo permette di non modificare l’edificio che la ospita ed è ideale e adatta per edifici monumentali, strutture ricettive e condomini, o edifici simili che richiedono soluzioni esteticamente in armonia con il contesto della struttura.
E’ dotato di un pannello di comando integrato dal quale l’utente può gestire il funzionamento della macchina in autonomia. In base alle normative seconda delle normative locali e nazionali, si possono applicare norme diverse inerenti l’altezza di sollevamento e i sistemi di protezione. Le opzioni a disposizione per chi sceglie di installare Otello sono davvero numerose. E grazie al bonus 75% è possibile risparmiare oltre due terzi della spesa per l’acquisto.
| Capacità di sollevamento | 375 kg |
| Velocità di sollevamento | 13 mm/sec |
| Piattaforma (pallet incluso) | 270 kg |
| Telaio (pallet incluso) | 210 kg |
| Spessore del rivestimento del pavimento | 22 mm |
| Altezza di sollevamento | 830 mm |
| Alimentazione primaria | 90-264Vac |
| Batterie | 2 x 12V/7,0 Ah |
Questo sito utilizza cookie tecnici e di profilazione.
Puoi accettare, rifiutare o personalizzare i cookie premendo i pulsanti desiderati.
Chiudendo questa informativa continuerai senza accettare.
Impostazioni privacy
Questo sito utilizza i cookie per migliorare la tua esperienza di navigazione su questo sito.
Visualizza la Cookie Policy Visualizza l'Informativa Privacy
Font Awesome è un servizio di visualizzazione di stili di carattere gestito da Fonticons, Inc.
Luogo del trattamento: Stati Uniti - Privacy Policy
Google reCAPTCHA è un servizio di protezione dallo SPAM fornito da Google Ireland Limited.
L'utilizzo del sistema reCAPTCHA è soggetto alla privacy policy secondo termini di utilizzo di Google.
Luogo del trattamento: Irlanda - Privacy Policy
Google Analytics è un servizio di analisi web fornito da Google Ireland Limited (“Google”). Google utilizza i dati personali raccolti per tracciare ed esaminare l’uso di questo sito web, compilare report sulle sue attività e condividerli con gli altri servizi sviluppati da Google. Google può utilizzare i tuoi dati personali per contestualizzare e personalizzare gli annunci del proprio network pubblicitario. Questa integrazione di Google Analytics rende anonimo il tuo indirizzo IP. I dati inviati vengono collezionati per gli scopi di personalizzazione dell'esperienza e il tracciamento statistico. Trovi maggiori informazioni alla pagina "Ulteriori informazioni sulla modalità di trattamento delle informazioni personali da parte di Google".
Luogo del trattamento: Irlanda - Privacy Policy
Consensi aggiuntivi:
Facebook Remarketing è un servizio di Remarketing e Behavioral Targeting fornito da Facebook Ireland Ltd. Questo servizio è usato per collegare l'attività di questo sito web con il network di advertising Facebook.
Luogo del trattamento: Irlanda - Privacy Policy
Clarity è un servizio di heat mapping e di registrazione delle sessioni fornito da Microsoft Corporation.
Luogo del trattamento: Stati Uniti - Privacy Policy